Nesta Plus

Hocheffizienter Brennwertkessel

Diese klassenführende Konstruktion des NESTA Plus mit einem großen Wasservolumen im Primärkreislauf sorgt für maximale Wärmeentnahme. Diese Funktionen ermöglichen eine starke Leistungssteigerung bei einer minimalen Vergrößerung der Grundfläche. Dies ist die perfekte Lösung, wenn der Platz im Technikraum knapp ist. Das hohe Heizwasservolumen sorgt für Kesselstabilität und maximale Wärmeentnahme. Damit ist Nesta Plus die perfekte Lösung für jede Anwendung mit hohem Leistungsbedarf und begrenztem Platz im Technikraum.

6

NOx-Klasse

108 %
Wärmewirkungsgrad
10:1

Modulationsfaktor

LEISTUNGSDATEN

Wärmeeinspeisung (netto) G20 kW 90 - 792
Wärmeeinspeisung (netto) G31 kW 197 - 792
Wärmeabgabe bei 80/60 °C G20 kW 86,6 - 769,8
Wärmeabgabe bei 80/60 °C G31 kW 190,4 - 769,8
Wärmeabgabe bei 50/30 °C G20 kW 96,7 - 831,5
Wärmeabgabe bei 50/30 °C G31 kW 209,5 - 816,1

ENDEMENTSGEGE-VENS

Heizeffizienz 80/60 °C % 96,2 - 97,2
Heizeffizienz 50/30 °C % 107,5 - 105
Nutzeffizienz bei 30 % (Rücklauf bei 30°C) % 108,3
Jahreszeitliche Effizienz % 93

ALLGEMEINE DATEN

Fassungsvermögen Wasser l 563
Gaskategorien I2E(S), I2E, I2H, I2ELL, I2HS, I2N, I2EK, I3P, I2E(R), II2E3P, II2E(S)3P, II2EK3P, II2H3P, II2L3P, II2E+3P, II2E(R)3P, II2Esi3P, II2Er3P
Gasart(en) G20 - G25 - G25.1 - G25.3 - G31
Abgasrohrart(en) B23 - B23p - C43 - C53 - C63 - C83
CO-Emissionen mg/kWh 21,5
Gasdruck (G20) m3/h 8,6 - 77,8
Gasdruck (G31) m3/h 7,6 - 31
Nox Klasse 6

ABMESSUNGEN

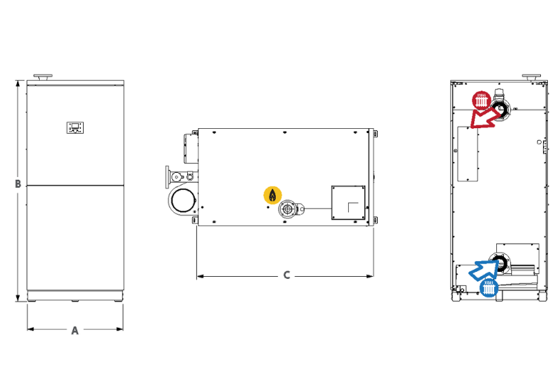
Breite (A) mm 865
Höhe (B) mm 1970
Länge (C) mm 1555
Trockengewicht kg 934

ANSCHLÜSSE

Lufteinlass mm 250
Gasarmatur in Flange DN 65 Class PN 6
Heizungslieferung in Flange DN 80 Class PN 16
Heizungsrücklauf in Flange DN 80 Class PN 16
Rauchkanal mm 250
Kondensatablauf mm 26,7
Nesta Plus NP 840

Aufbau

Das Herzstück aller NESTA Plus Kessel ist unser Fire-Tube Edelstahl-Wärmetauscher. Die Verwendung hochwertiger Edelstahllegierungen gewährleistet Produktlanglebigkeit und -zuverlässigkeit sowie eine erhöhte höhere Korrosions- und Oxidationsbeständigkeit.

Das einzigartige Fire-Tube-Design von Nesta-Wärmetauschern ist eine markterprobte Technik, mit der diese seit vielen Jahren in Polen hergestellt und weltweit vertrieben werden.

design1

Reaktive Modulation

Nesta Plus ist ein Hochleistungs-Brennwert-Einzugkessel mit einem beeindruckenden Modulationsbereich von 10:1. Damit gehört er zu den Klassenbesten und bietet eine hohe saisonale Rendite und erhebliche Einsparungen beim Gasverbrauch.

Die lineare Modulation erfüllt die Anforderungen von Technikräumen mit höherer Leistung, wodurch der Kessel konstant einen maximalen Wirkungsgrad erzielen und der Kesselzyklus so weit wie möglich begrenzt werden kann. Diese Technik ist nicht nur im Fall von Heizanlagen der neuen Generation wirksam, sondern auch beim Ersatz älterer Kessel in bestehenden Gebäuden.

Hauptmerkmale und Vorteile

  • Edelstahl-Wärmetauscher
  • Interne Rohrleitungen aus geschweißtem Edelstahl
  • Selbstreinigende Rauchabzugsröhre
  • Geringer Druckabfall
  • Kompakte Abmessungen
  • Eingeschränkter Wartungsbedarf
  • Aufnahmepunkte für Beförderung und Aufstellung
  • Niedriges NOx

Bedienfeld

Das Nesta Plus-Steuergerät ermöglicht die Fernsteuerung des Kessels über die Webserver-Konnektivität. Einer der Hauptvorteile dieses fortschrittlichen integrierten Steuerungssystems besteht in der Optimierung der regelmäßigen Wartung mithilfe der Eigendiagnose, die den Techniker vor dem Besuch des Standorts unterstützt.
control

Cookie-Richtlinie

Wir (AIC Europe BV) möchten Cookies auf Ihrem Gerät installieren, um unsere Website zu verbessern (basierend auf Berichten und Statistiken über Ihre Nutzung unserer Website), sowie um unsere Marketingaktivitäten und die Strategie der AIC-Gruppe zu verbessern für seine Präsenz im virtuellen Raum (basierend auf Beobachtungen Ihrer Besuche auf unserer Website und Ihrer Nutzung). Die von uns verwendeten Cookies sind unsere eigenen oder werden von Google LLC mit Sitz in den USA bereitgestellt.

Stimmen Sie dem oben genannten zu? Ihre Einwilligung ist freiwillig.

Weitere Einzelheiten finden Sie unter: Datenschutz-Bestimmungen, Nutzungsbedingungen